Spring arhitecture biro Tomaž Kancler d.o.o. ©2018
// Gregorčičeva ulica 22, 2000 Maribor - Slovenia //
info@spring.si
//
Izdelava spletne strani:
www.tehnicnapomoc.si
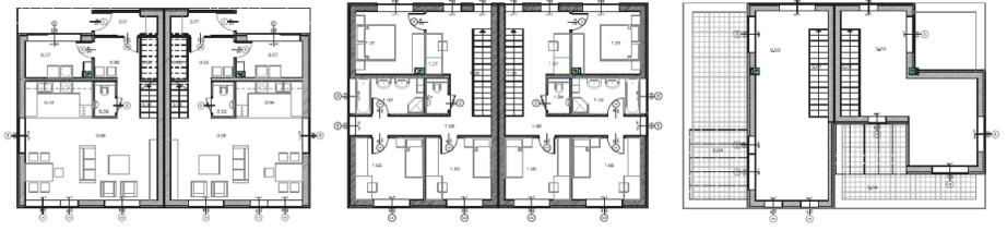
Housing “Miklavz”
Miklavž, Slovenia
2008 - 2010
14 row houses
14 semi detached houses
2 single family house
ARCHITECTURAL OFFICE
Projects
Biro
Contact
Projects
Biro