Spring arhitecture biro Tomaž Kancler d.o.o. ©2018
// Gregorčičeva ulica 22, 2000 Maribor - Slovenia //
info@spring.si
//
Izdelava spletne strani:
www.tehnicnapomoc.si
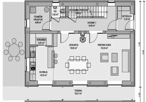
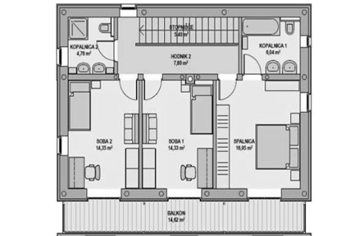
House “L”
single family house
for the company Ytong - house for the katalogue
2006
total area: 160 m2
ARCHITECTURAL OFFICE
Projects
Biro
Contact
Projects
Biro