Spring arhitecture biro Tomaž Kancler d.o.o. ©2018
// Gregorčičeva ulica 22, 2000 Maribor - Slovenia //
info@spring.si
//
Izdelava spletne strani:
www.tehnicnapomoc.si
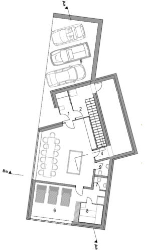
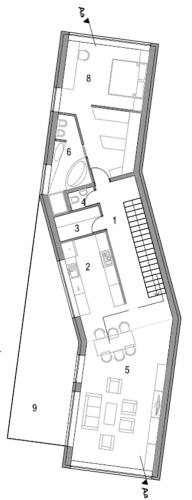
House “A”
single family house
Lajše, Slovenia
2010 -2011
total area: 230 m2
ARCHITECTURAL OFFICE
Projects
Biro
Contact
Projects
Biro